為檢驗騰飛設計院BIM技術應用部近段時間的工作成果,他們于2019年三月做了第一季度的工作匯報及后期工作部署,和小編一起看看他們的工作成果吧。
機電設備專業篇
機電設備小組負責人重點闡述了項目的實施策劃及目標成果的要求,總結了2019年第一季度主要完成的工作,并進行工作成果展示。
北海騰飛花園A區人防區車庫管線
北海騰飛花園A區車庫管線綜合
機電設備小組深挖機電設備專業應用點,從凈高分析、綜合支吊架應用、到機房空間優化等,重點闡述了項目的實施策劃方案及目標要求。
北海騰飛花園一期車庫局部三維展示
北海騰飛花園人防區預留孔洞局部三維
車庫局部凈高示意圖
綜合支吊架的應用
北海騰飛花園人防區機房優化
土建專業篇
土建專業近期圍繞模型創建、問題收集、項目應用情況、人員培訓與考核、BIM5D項目部署等方向開展工作,結合項目實施情況對所做工作進行了復盤。
北海騰飛花園一期部分車庫
車庫工程量統計
建模過程中發現圖紙問題并解決
為了更好的服務項目,讓BIM技術順利落地并實現精細化管理,騰飛集團采購了BIM5D應用軟件并在北海騰飛花園項目上進行部署,同時派出相關人員駐場,協助該項目BIM技術的實施。
人員培訓
人員駐場結合應用
人員培訓成果展示
廣聯達BIM5D集中培訓
BIM建筑正向設計篇
匯報以何為BIM的正向設計為開題,以啟發式的方式展開本次的工作匯報:
思路:你在開始建模之前,沒有圖紙,所有的設計從草圖紙板開始,過程中也不會做導出dwg這種事情,最后能從revit中交付整套成果。
1、“先建模,后出圖”正向設計BIM應用
因為使用“先建模,后出圖”的正向設計BIM技術應用方式,保證了圖紙和模型的一致性,減少了施工圖的錯漏碰缺,對于設計質量有很大的提高。
2、全專業設計BIM應用
實現了各專業之間設計過程中的高度協調,提高了專業間設計會簽效率,更加高效的把控項目設計的進度和質量。
3、全三維無死角的設計
提高了設計完成度和精細度,減少了設計盲區,讓模型服務后期施工成為可能;這也是BIM正向設計的最終目的。
最終目的:所有關聯參數如何綁定在一起,把計算機能做的交給計算機,把設計還給設計師。
簡而言之:就是使用BIM軟件從前到后做出一整套的設計工作。
我們通過模型的創建和二維圖元的添加從而得到各種施工圖
(如下圖):
模型創建
二維平面出圖
前立面
西立面
樓梯剖面詳圖
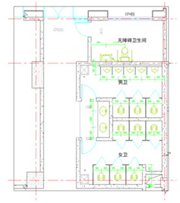
衛生間詳圖
門窗大樣圖
明細表工程量統計
正向設計優勢
1、平面圖直接轉為立面,剖面,方便快捷。
2、多種繪圖思維方式展開查漏補缺,復雜圖元專人繪制效率提高。
3、整體效果明了,設計意圖突出。
本次工作匯報不僅是對BIM應用部門第一季度工作的檢驗,也是BIM技術在實際施工應用中的一個總結,在實現企業項目全面運用BIM技術的同時,我們要順應當下時代BIM發展的趨勢和方向,推開企業的大門去實踐,探索,創新,走出一條與時俱進的發展道路。